Kingswood Homes

St Michaels Gate, Baddesley Clinton

£10.00

Product Information


 

SOLD OUT...... SORRY! PLEASE SEE OUR OTHER UPCOMING DEVELOPEMNTS.

Ferrers House and Rising House, Rising lane, Baddesley Clinton, Solihull, West Midlands, B93 0DA

 

A choice development of just two, executive four bedroom detached family homes. Designed for modern family living, featuring a superb contemporary specification

 

The properties briefly afford lounge and spacious kitchen/breakfast/family room with utilities, 4 double bedrooms, 2 with en-suite facilities plus family bathroom. Both properties are built to a very high standard of specification and come with a 10 Year NHBC warranty upon completion.


 

RISING HOUSE - SOLD (Plot 2 - Right) - £699,950

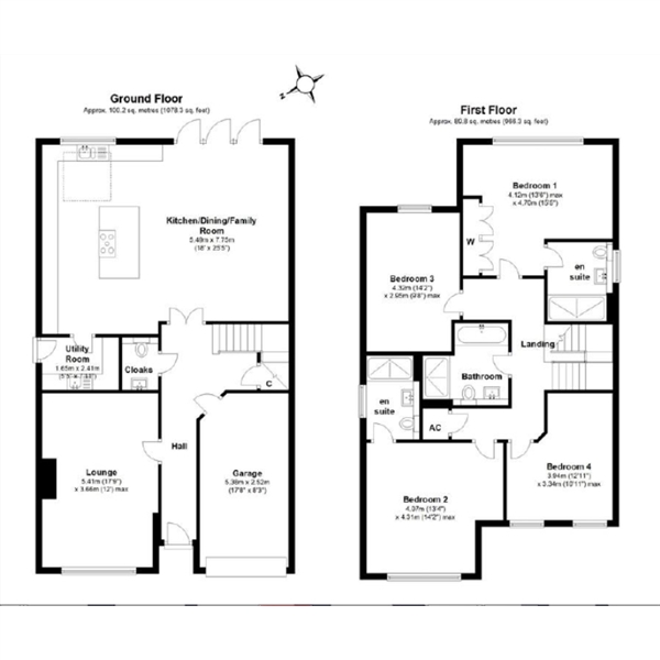
ON THE GROUND FLOOR ENTRANCE HALL

With useful under stairs storage cupboard. GUEST CLOAKROOM LOUNGE 18' 1" x 12' 0" (5.53m x 3.68m) KITCHEN/DINING/FAMILY ROOM 6' 6" x 32' 0" (2.00m x 9.76m) UTILITY ROOM 5' 4" x 7' 10" (1.63m x 2.39m) ON THE

FIRST FLOOR LANDING

With airing cupboard. MASTER BEDROOM 12' 2" x 15' 6" (3.71 max m x 4.74m) With fitted wardrobes. EN-SUITE SHOWER ROOM BEDROOM 2 13' 3" x 14' 2" (4.06m x 4.34m) EN-SUITE SHOWER ROOM BEDROOM 3 14' 0" x 8' 3" (4.28m x 2.52m) DRESSING AREA 13' 9" x 5' 5" (4.20m x 1.66m) BEDROOM 4 12' 9" x 10' 9" (3.91m x 3.28 max m) BATHROOM
 

OUTSIDE AMPLE FORECOURT PARKING SINGLE GARAGE REAR GARDEN


 

 

FERRERS HOUSE - SOLD (Plot 1 - Left) - £685,000

ON THE GROUND FLOOR ENTRANCE HALL

With useful under stairs storage cupboard. GUEST CLOAKROOM LOUNGE 17' 8" x 12' 0" (5.41m x 3.66 max m) KITCHEN/DINING/FAMILY ROOM 18' 0" x 25' 5" (5.49m x 7.75m) UTILITY ROOM 5' 4" x 7' 10" (1.65m x 2.41m) ON

THE FIRST FLOOR LANDING

With airing cupboard. MASTER BEDROOM 13' 6" x 15' 5" (4.12 max m x 4.70m) With fitted wardrobes. EN-SUITE SHOWER ROOM BEDROOM 2 13' 4" x 14' 1" (4.07m x 4.31 max m) EN-SUITE SHOWER ROOM BEDROOM 3 14' 2" x 9' 8" (4.32m x 2.95 max m) BEDROOM 4 12' 11" x 10' 11" (3.94m x 3.34 max m) BATHROOM


OUTSIDE AMPLE FORECOURT PARKING SINGLE GARAGE REAR GARDEN



SHOW HOME NOW OPEN (BY APPOINTMENT)

FOR MORE INFORMATION PLEASE CONTACT
PETER CLARKE NEW HOMES: 01926 870145

 

http://www.peterclarkenewhomes.co.uk/developments/rising-lane




 


Enquire Download Brochure

Our Homes

Property Features

  • Luxury flooring throughout
  • Modern solid Oak kitchens with Franke sink units, Neff appliances and designer lighting.
  • High quality fully tiled bathrooms and en-suites
  • Porcelanosa tiling
  • Oak staircases
  • Fitted bathroom furniture
  • Landscaped gardens
  • Feature fires and fireplaces to living rooms
  • Fully Zoned Wet Underfloor heating to the ground floor
  • Solar panels to supplement Electricity consumption

Our Homes

Specification

  • Silestone worktops
  • Integrated NEFF appliances incl white goods
  • LED Downlighters
  • Franke sinks in kitchen and utility
  • Solid 18mm units with soft close doors
  • TV and satellite points
  • High quality porcelain flooring with 7 inch skirting
  • Quality sanitaryware
  • Porcelanosa Wall and Floor Tiles
  • Grohe mixer taps
  • Vanity sink units
  • Shaver points and externally venting extractor units
  • Shower cubicles with rain head showers
  • LED downlights
  • Chrome towel rails
  • 2 en-suite shower rooms and a bathroom to each plot
  • Dressing rooms to master bedrooms
  • Luxury carpets and underlay
  • Fitted wardrobes to the master bedroom
  • TV and satellite points where specified
  • Light and airy decor

What's around

Location


Baddesley Clinton is a tiny hamlet well located in the heart of the Midlands with easy access to both the M42 and A46 which in turn link to the Midlands Motorway Network. Located off the A4141 which joins Solihull to the north west and Warwick via the A4177 to the south east. junction 5 of the M42 is just 5 miles away with Birmingham International Airport, Birmingham International Railway Station and the National Exhibition Centre within a further 5 miles accessed off Junction 6 of the M42. Henley in Arden is approximately 8 miles, Solihull 6 miles and Birmingham 17 miles.

Beautiful Hay Wood, and the renowned National Trust property known as Baddesley Clinton are just a short distance away.

An exclusive development of just 2 executive detached properties situated in the semi-rural location of Baddesley Clinton and yet within easy reach of Knowle & Dorridge village centres.